Robinio ist ein aussergewöhnlicher Abenteuerspielplatz für alle Kids. Die Serie vereint den Reiz der Natürlichkeit von Robinienholz mit der edlen Optik und den Vorzügen von Edelstahl, wie höchste Witterungsbeständigkeit und Langlebigkeit bei minimalem Wartungsaufwand. Robinie ist ein sehr festes und dank seinem hohen Ölgehalt natürlich konserviertes Holz, das sich hervorragend für Spielplätze eignet. Kleine Details wie die angeschrägten Pfostenschutzkappen aus Holz verleihen der Serie das besondere Etwas. Alle Geräte entsprechen DIN EN 1176 und sind zertifiziert, erfüllen somit die Voraussetzungen für den öffentlichen Bereich. Wir gewähren 2 Jahre Garantie.
• Material: Edelstahlrundpfosten, direkt im Boden verankert und absolut korrosionsbeständig, dekorative Schutzkappen aus verleimtem Kantholz
• einige Geräte mit Robinienrundholzpfosten, direkt im Boden verankert
• naturbelassenes, unbehandeltes Robinienholz, extrem haltbar
• Rutschen, Stangen und Befestigungselemente aus Edelstahl
• farblich angepasste Seile aus PP mit Stahlkern
Der geheime Weg führt ins Spielparadies Robinio. Auch als Teil eines Hindernisparcours denkbar.
• Tunnel aus PE, Ø innen: 76 cm
• Anzahl der Nutzer: 4
• Grundfläche: 120 x 159 cm
• Sicherheitsbereich: 420 x 459 cm (Fläche: 17,5 m²)
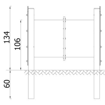
• Gesamthöhe: 134 cm
• max. freie Fallhöhe: 106 cm
• von 1 bis 14 Jahren
• von 1 bis 14 Jahren
• Fundamenttiefe: 60 cm Unsere Außenspielgeräte müssen, bis auf wenige Ausnahmen (am Produkt vermerkt), einbetoniert werden. Geringfügige Abweichungen in Abmassen und Konstruktion aufgrund technischer Verbesserungen sind bei allen Geräten möglich. Für die Lieferung unserer Außenspielgeräte fallen gestaffelte Frachtkosten an. Die Montage ist nicht im Preis enthalten.
Garantie:
• 30 Jahre: für Schäden an Teilen aus Edelstahl,
• 10 Jahre: für Schäden an Teilen aus HDPE und HPL,
• 5 Jahre: für Schäden an Teilen aus verzinktem, pulverbeschichtetem Stahl sowie Teilen aus Holz,
• 2 Jahre: für Schäden an Teilen aus sonstigen Materialien, die bei sachgemässer Nutzung aufgrund von Produktionsfehlern auftreten. Sämtliche Materialien unterliegen der natürlichen Alterung. Dabei kann es zu Veränderungen des äusseren Erscheinungsbildes kommen, die jedoch in keiner Weise die Haltbarkeit oder Sicherheit des Produkts beeinträchtigen. Dazu gehören Abnahme der Farbintensität, Rissbildung in Holzelementen oder normale Abnutzungserscheinung an Farbbeschichtungen - diese stellen keinen Garantie-Anspruch dar. Wir verwenden einen Edelstahl, der nicht für eine dauerhafte Belastung mit Salz- oder Chlorwasser ausgelegt ist. Für den Einsatz im Wasser, in meeresnahen Küstenregionen oder Gegenden, in denen es zum Auftreten von saurem Regen kommen kann, sind unsere Aussenspielgeräte nicht geeignet. Von der Garantie ausgeschlossen sind Schäden infolge von: - unsachgemässem Gebrauch oder Vandalismus, - Reparaturen, die ohne Abstimmung mit dem Hersteller erfolgt sind, - fehlerhafter Montage, - Ereignissen höherer Gewalt.
• Fundamenttiefe: 60 cm
Unsere Aussenspielgeräte müssen, bis auf wenige Ausnahmen (am Produkt vermerkt), einbetoniert werden.
Da unsere Robinio-Serie mit Pfosten und Balken aus naturgewachsenem Holz gefertigt wird, sind die angegebenen Masse als Näherungswerte zu verstehen. Die Stärke der Rundholzpfosten und -balken beträgt zwischen 12 und 16 cm.
Das verwendete Robinienholz ist besonders umweltfreundlich, da unbehandelt. Eventuelle Risse, die bei solchem Holz natürlicherweise auftreten können, beeinträchtigen die Sicherheit und Funktionstüchtigkeit in keiner Weise. Bei Bedarf können Sie Risskanten glattschleifen. Aufgrund der selbstkonservierenden Eigenschaften von Robinienholz muss dieses nicht nachgeölt oder imprägniert werden, was den Wartungsaufwand enorm reduziert.
Geringfügige Abweichungen in Abmassen und Konstruktion aufgrund technischer Verbesserungen sind bei allen Geräten möglich.
Für die Lieferung unserer Aussenspielgeräte fallen gestaffelte Frachtkosten an. Die Montage ist nicht im Preis enthalten.
Garantie:
• 30 Jahre: für Schäden an Teilen aus Edelstahl,
• 10 Jahre: für Schäden an Teilen aus HDPE und HPL sowie Teilen aus Robinienholz,
• 5 Jahre: für Schäden an Teilen aus verzinktem, pulverbeschichtetem Stahl,
• 3 Jahre: für Schäden an Teilen aus Holz,
• 2 Jahre: für Schäden an Teilen aus sonstigen Materialien,
die bei sachgemässer Nutzung aufgrund von Produktionsfehlern auftreten.
Sämtliche Materialien unterliegen der natürlichen Alterung. Dabei kann es zu Veränderungen des äusseren Erscheinungsbildes kommen, die jedoch in keiner Weise die Haltbarkeit oder Sicherheit des Produkts beeinträchtigen. Dazu gehören Abnahme der Farbintensität, Rissbildung in Holzelementen oder normale Abnutzungserscheinung an Farbbeschichtungen - diese stellen keinen Garantie-Anspruch dar. Wir verwenden einen Edelstahl, der nicht für eine dauerhafte Belastung mit Salz- oder Chlorwasser ausgelegt ist. Für den Einsatz im Wasser, in meeresnahen Küstenregionen oder Gegenden, in denen es zum Auftreten von saurem Regen kommen kann, sind unsere Aussenspielgeräte nicht geeignet.
Von der Garantie ausgeschlossen sind Schäden infolge von:
- unsachgemässem Gebrauch oder Vandalismus,
- Reparaturen, die ohne Abstimmung mit dem Hersteller erfolgt sind,
- fehlerhafter Montage,
- Ereignissen höherer Gewalt.
• von 1 bis 14 Jahren
Geräte-Spezifikationen:
Länge (in m): 1,2
Breite (in m): 1,59
Höhe (in m): 1,34
Sicherheitsfläche (in m²): 17,5
Max. freie Fallhöhe (in m): 1,06
Sicherheitsfeldumfang (m): 15
Empfohlenes Alter (von-bis): 3-14
Anzahl der Nutzer: 4